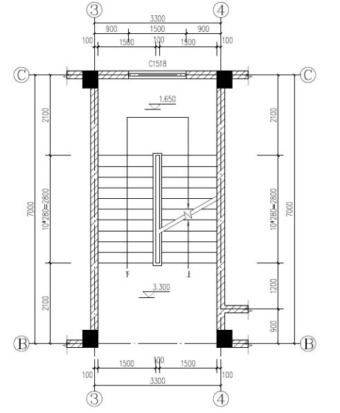
楼梯平面图是用于建筑施工中的图纸。楼梯平面图中一般标注有楼梯间的开间尺寸、进深尺寸、平台深度尺寸、梯段与梯井宽度尺寸,以及楼梯栏杆(或栏板)扶手的位置尺寸。画楼梯平面图的软件非常多,而旋转楼梯平面图则是楼梯平面图相对复杂的一种。
中文名
楼梯平面图
外文名
Stair plan
定义
用于建筑施工的楼梯图纸
所用软件
CAD软件
概念

楼梯平面
楼梯平面图上表示出来是楼梯面的宽度和楼梯面的长度以及楼梯的走向,而高度只能在立面图上给它表达出来,或者在平面图上给个标注。平面图上的标注需要把向上或向下表达出来,下面是一张简单的楼梯平面,可以参考,各种场合楼梯的面宽度都不一样,一般最小保证在320大的在400左右。当然室外的话500的大小也是有的。一般高度保证在180左右,不能太高也不能太底。
读图方法
- 在底层平面图中,剖切后的45°折断线,应从休息平台的外边缘画起。该楼底层至二层的第一梯段为10级踏步,水平投影应为9格(水平投影的格数=踏步数-1)。图中箭头方向指明了楼梯的上、下的走向。在楼梯底层平面图上,楼梯起步线至休息平台外边缘的距离。在楼梯的底层平面图应标注出各地面的标高和楼梯剖面图的剖切符号等内容。
- 楼梯中间层平面图沿二、三层间的休息平台以下将梯段剖开,可得到中间层楼梯平面图。从图中可以看出,中间层楼梯平面图中的45°折断线,应画在梯段的中段。在画有折断线的一边,折断线的一侧(靠近走廊的一侧)表示的为从走廊(楼层平台)至上一层楼面的梯段,另一侧(靠近休息平台的一侧)则表示的是下一层的第一梯段上的可见踏步及休息平台。而在扶手的另一边,表示的是休息平台以上的第二梯段的踏步。
- 楼梯顶层平面图由于此时的剖切平面位于楼梯栏杆(栏板)以上,楼梯未被切断,故在楼梯顶层平面图上不画折断线。图中表示的是下一层的两个楼梯和休息平台,且箭头只指向上楼的方向。1
所用软件
一般画建筑图都用CAD软件。CAD软件是最常用的也是最好用的。非常适合用于画楼梯平面图,同时,画旋转楼梯平面图也是适用的。此外,还可以选择天正建筑这个软件,可以自动生成楼梯平面、立面,该软件的普及率也比较高。关于旋转楼梯平面图,住宅建筑踏步尺寸过去3米层高的普遍采用250乘166.67mm。新的住宅规范要求宽不小于260,高不大于165。公用建筑踏步宽不小于280,高不大于150。事先要顾及底层有通道的第一跑梯段的梯梁底的净高不得小于2000mm,所以底层都是不等跑的梯段。
参考资料
1.楼梯上下方向怎么看·楼盘网

